MILANO,VIA LOMAZZO, VENDESI BILOCALE ULTIMO PIANO ZONA SARPI
€ 398.000
zona Sempione
Dettagli
Contratto Vendita
Rif Lomazzo 55
Prezzo € 398.000
Provincia Milano
Comune Milano
Zona Sempione
Indirizzo Via Paolo Lomazzo 55">
Vani 2
Camere 1
Bagni 1
Classe energetica
G (DL 192/2005)
EPI 175 kwh/m2 anno
Piano 4 / 4
Riscaldamento inesistente
Condizioni da ristrutturare
Spese condominiali € 60
Anno di costruzione 1929
Ascensore si
Cucina semiabitabile
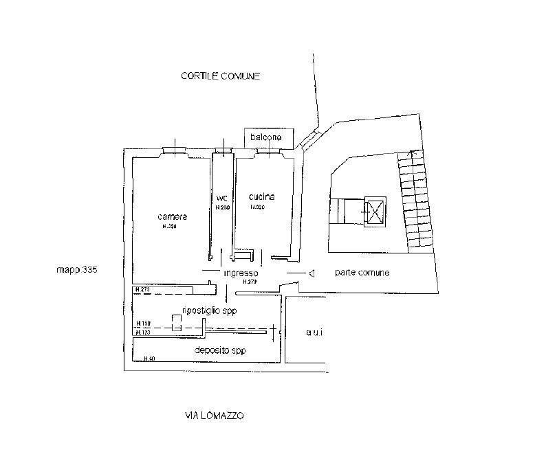
Consistenze
| Descrizione | Superficie | Sup. comm. |
|---|---|---|
| Principali | ||
| Immobile - 4° piano | 51 Mq | 51 Mqc |
| Altro - 4° piano | 14 Mq | 4 Mqc |
| Altro - 4° piano | 8 Mq | 1 Mqc |
| Balcone - 4° piano | 2 Mq | 1 Mqc |
| Totale | 57 Mqc | |
Milano, in via Paolo Lomazzo 55, nel cuore della zona Paolo Sarpi, proponiamo un bilocale da ristrutturare situato all'ultimo piano di uno stabile tipico della vecchia Milano, servito da ascensore. L'appartamento, molto luminoso e con una superficie di 51 mq, si apre su un ingresso che conduce al soggiorno con cucina a vista, dal quale si accede a un balcone di 2 mq (non incluso nella metratura indicata). La zona notte è composta da un ampia camera matrimoniale e da un bagno finestrato con doccia. Completano la proprietà, e sono direttamente collegati all'abitazione, un ampio locale studio/ripostiglio di 14 mq e un deposito di 8 mq, entrambi accessibili dall'interno.
La richiesta è di Eu.398.000.
I NOSTRI UFFICI SONO APERTI
Da Lunedì a Venerdì 09.00 – 12.30 / 15.00 – 19.30
Sabato solo su appuntamento
SIAMO PROFESSIONISTI NEL SETTORE DA OLTRE 20 ANNI. I NOSTRI UFFICI SI TROVANO IN VIA PAOLO LOMAZZO 11 A MILANO. SIAMO A DISPOSIZIONE PER QUALSIASI INFORMAZIONE. SE DOVETE VENDERE O AFFITTARE IL VOSTRO IMMOBILE CHIAMATECI PER UNA VALUTAZIONE GRATUITA. PER INFO TEL. 0222198520 E-MAIL info@dezottihomes.it WEB www.dezottihomes.it
La richiesta è di Eu.398.000.
I NOSTRI UFFICI SONO APERTI
Da Lunedì a Venerdì 09.00 – 12.30 / 15.00 – 19.30
Sabato solo su appuntamento
SIAMO PROFESSIONISTI NEL SETTORE DA OLTRE 20 ANNI. I NOSTRI UFFICI SI TROVANO IN VIA PAOLO LOMAZZO 11 A MILANO. SIAMO A DISPOSIZIONE PER QUALSIASI INFORMAZIONE. SE DOVETE VENDERE O AFFITTARE IL VOSTRO IMMOBILE CHIAMATECI PER UNA VALUTAZIONE GRATUITA. PER INFO TEL. 0222198520 E-MAIL info@dezottihomes.it WEB www.dezottihomes.it
Video
Richiedi maggiori informazioni
Mappa
Zoom della mappa
Apri con:
Apple Maps
Google Maps
Waze
Contattaci
DE ZOTTI HOMES intermediazioni immobiliari
Via Paolo Lomazzo, 11 20154 MILANO (MI)
Via Paolo Lomazzo, 11 20154 MILANO (MI)
C.F.: DZTJCP81T18F205W
P.IVA: 10230590969
+390222198520





